︎
Entire Landscapes
︎
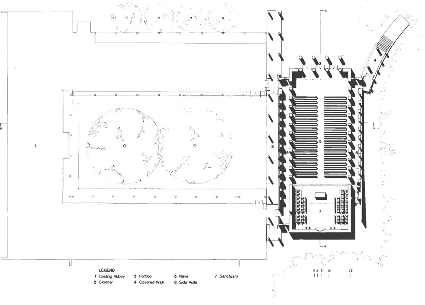
Cistercian Abbey Church
Cunningham Architects
Irving, Texas
1992
Home
Visual Index
Next︎
︎